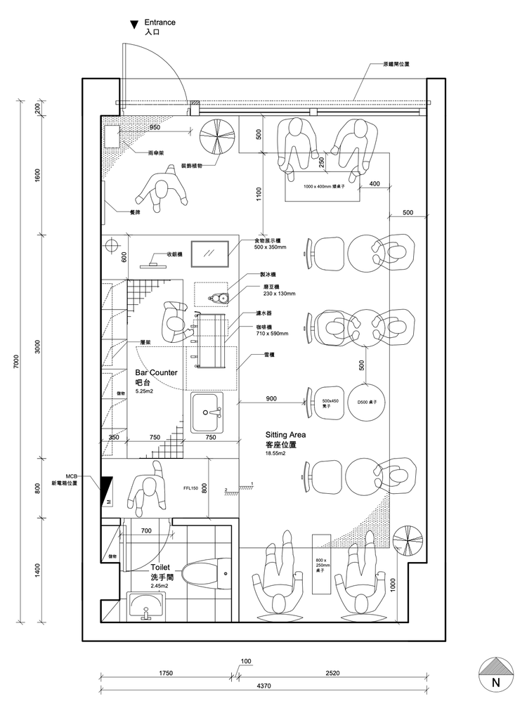
ZHUN Cafe

Area 24m²

Status Completed in Spring 2022

Location Guangdong, China

Designer Joy Huo

Zhun Cafe is my first project as a freelancer. The coffee shop has been kept intentionally raw with rough concrete walls and mainly used unpolished materials. Located in a quiet residential area, the cafe provides a place for people to relax and enjoy some intimate conversations.